Western Development Museum
Locations
Moose Jaw
North Battleford
Saskatoon
Yorkton
About
About the WDM
Reconciliation
Community Initiatives
History & Timeline
WDM News
Sparks Newsletter
Careers
Contact
Donate
Search
Menu
Close
Visit
Discover
Discover
Exhibits
Collections
Submit an Exhibit
Saskatchewan History Album
Things to Do
Things to Do
Events at the WDM
WDM on the Go
Blacksmithing
Steam Traction Engine Operation
Educate
Educate
Curriculum Programs
History in the Classroom
Get Involved
Get Involved
Membership
Volunteer
Donate
Donate an Artifact
Sponsorship
About
About the WDM
Reconciliation
Community Initiatives
History & Timeline
WDM News
Sparks Newsletter
Careers
Contact Us
Locations
Moose Jaw
North Battleford
Saskatoon
Yorkton
Facebook
Twitter
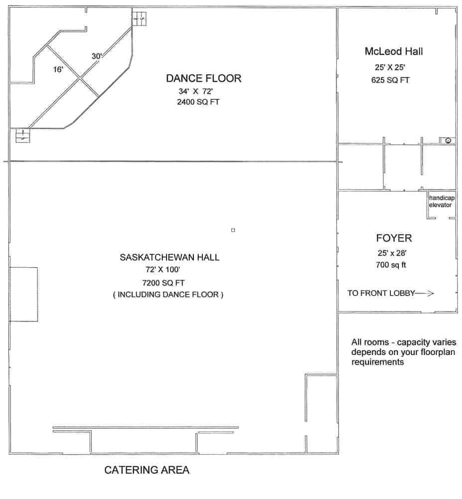
Saskatchewan Hall
Capacity:
Banquets – 100 to 450 people (depending on floor plan). Theatre Seating – 750 people
Features
Ground level loading doors – 12 ft x 12 ft
Incandescent and/or mercury vapor lighting
Removable stage
Public address system
220 volt outlet available
Wi-Fi Internet Access
Floor Plan
Sign up for our e-newsletter!
Keep up to date on what’s happening at the WDM.
Click to subscribe